Baixada Soccer Stadium
COUNTRY

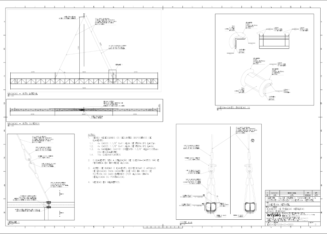
CLIENT

DESCRIPTION
Retractable roof structure of about 450Tons and 70m (230ft) of free span.
Emasa Engineering designed studies for the rigging engineering and rigging plans of the steel roof trusses, along with laydown studies for the material stockage in the confined pre-assembly region.
Check Other Projects

The Tide Footbridge
Lifting engineering for the rotation and erection of plate-like modules with very irregular geometries for a landmark foot-bridge part of the large-scale renovation project of the Greenwich Peninsula Region.

Rio's Olympic Stadium Recovery
Analysis for the recovery of the roofing of the Olympic Stadium for the 2016 Rio de Janeiro Olympic games. The stadium, with its undulated roofing of an atypical arched structure, has a capacity for 47.000 spectators.

Corinthians Arena
Erection engineering, Heavy Lift analyses and connection peer review for the roofing. Large scale and very irregular steel modules where assembled, weighting up to 400Tons.

Bellara Steel Complex
Erection engineering for the installation of an Air Separation Unit with three large Coldboxes (weighting up to 160ton). Works included terrain and underground checks using FEA and a comprehensive site assistance campaign.


Tamoios Cable Crane
Structural engineering for the review of the cables and the supporting steel towers for a 20Ton cable crane system used in a highway construction. Advanced non-linear iterative FE procedures and dedicated codes were used for the cable’s analyses.

Punta Catalina
720MW Thermoelectric power plant comprised of two boilers weighing approximately 12.000 Tons of steel structures with large application of modularization. Erection studies performed also for turbines, generators, desulfurization systems and a seaport for the coal delivery.

Ethylene XXI
Implementation of modularization strategy for a 70m (230ft) multi-story industrial building and heavy lift verification for mechanical equipment weighting up to 900Tons.

Corinthians Arena - Mezzanine
Structural project of the north and south mezzanines of the Corinthians Stadium. The project weighing 400 Tons and with an area of 1800m2 has a complex support typology and holds the north and south large scale screens.

Corinthians Arena – Temporary Seats
Peer review and site inspection for the structures which supported the temporary seats for the stadium during the 2014 World Cup. The structure was a mixture of wide-flange profiles and scaffolding to accommodate 20.000 spectators.


Comperj
Structural and rigging verification of steel modules and chimney towers of the HRSG and Boiler of the UTL-11 plant.
.jpg)
.png)
.png)
.png)